Conheça o empreendimento

Composto por 3 condomínios independentes desenvolvidos no imóvel com área útil de 42.042,86m² localizado na Rua Cultura com Rua Osvaldo Godoi Gomes, Vila Augusta, Viamão, RS, totalizando 581 unidades e 31.341,46m² de área construída;

O Condomínio I foi desenvolvido num imóvel de 12.131,81m² e possui 6 edifícios de 5 pavimentos com 32 apartamentos por edifício, totalizando 240 unidades de 2 quartos e 13.174,18m² de área construída;

O Condomínio II foi desenvolvido num imóvel de 14.357,54m² e possui 6 edifícios de 5 pavimentos com 32 apartamentos por edifício, totalizando 240 unidades de 2 quartos e 13.174,18m² de área construída;

O Condomínio III foi desenvolvido num imóvel de 15.556,51m² e possui 61 casas e 1 edifício com 40 apartamentos, todos de 2 quartos, totalizando 105 unidades e 4.993,10m² de área construída;

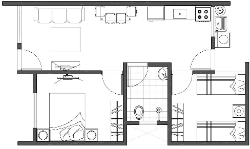
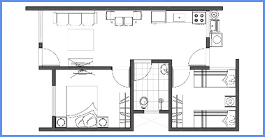
O apartamento possui 47,84m² de área construída, sendo composto de 1 sala de estar, 2 dormitórios, 1 banheiro social, 1 cozinha, 1 área de serviços e área de circulação;

A casa possui 43,33m² de área construída, sendo composto de 1 sala de estar, 2 dormitórios, área de circulação, 1 banheiro social, cozinha e área de serviços externa;

As áreas de lazer de todos condomínios contam com:

• Quadra poliesportiva;
• Salão de festas com churrasqueira;
• Playgrounds;
• Áreas de convivência;
Todos condomínios possuem infraestrutura que conta com:
• Portaria de entrada;
• Sala do síndico;
• Depósitos para materiais/equipamentos de limpeza;
• 1 vaga de garagem por apto/casa;
• Central de abastecimento de gás de cozinha (exceto nas casas);
• Lixeiras para coleta seletiva de lixo;
• Caixas d’água elevadas;
• Hidrômetro individual;
• Medidor de gás individual (exceto nas casas);
A segurança de todos condomínios conta com (exceto nas casas):
• Muro de perímetro com 2,10 metros de altura;
• Previsão para instalação de circuito interno de TV;
• Iluminação de emergência (exceto nas casas);
• Cerca elétrica;
• Portaria 24 horas;
• Portão de pedestres e de automóveis com acionamento eletrônico;