Conheça o empreendimento

Empreendimento em desenvolvimento, que será composto por 3 condomínios independentes desenvolvidos em imóvel de 87.734,16m², localizado na Rua Alexandre de Barros, Chácara dos Pinheiros, Cuiabá, MT, totalizando 688 unidades;

O Condomínio I possui 4 edifícios de 8 pavimentos com 64 apartamentos por edifício, totalizando 256 unidades de 2 quartos;

O Condomínio II possui 3 edifícios de 10 pavimentos com 80 apartamentos por edifício, totalizando 240 unidades de 2 quartos;

O Condomínio III possui 2 edifícios de 12 pavimentos com 96 apartamentos por edifício, totalizando 192 unidades de 2 quartos;

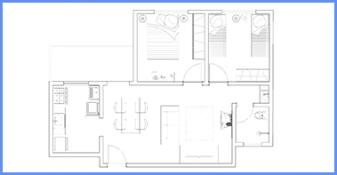
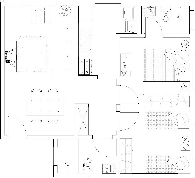
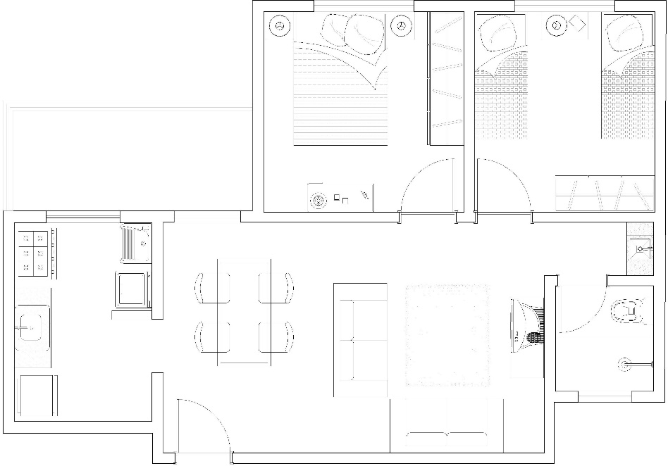
O apartamento Tipo “A†possui 57,58m² de área construída, sendo composto de 1 sala de estar e jantar, varanda, 2 dormitórios (sendo um suíte), 1 banheiro social, 1 cozinha, 1 área de serviços e área de circulação;

O apartamento Tipo “B†possui 52,35m² de área construída, sendo composto de 1 sala de estar e jantar, varanda, 2 dormitórios, 1 banheiro social, 1 cozinha, 1 área de serviços e área de circulação;

As áreas de lazer de todos condomínios contam com:

• Quadra poliesportiva;
• Salão de festas com churrasqueira;
• Piscinas para adultos e crianças;
• Playground;
• Ãreas de convivência;
Todos condomínios possuem infraestrutura que conta com:
• Portaria de entrada;
• Sala do síndico;
• Depósitos para materiais/equipamentos de limpeza;
• 1 vaga de garagem por apto;
• Central de abastecimento de gás de cozinha (exceto nas casas);
• Lixeiras para coleta seletiva de lixo;
• Caixas d’água elevadas;
• Hidrômetro individual;
• Medidor de gás individual (exceto nas casas);
A segurança de todos condomínios conta com:
• Muro de perímetro com 2,10 metros de altura;
• Previsão para instalação de circuito interno de TV;
• Iluminação de emergência (exceto nas casas);
• Cerca elétrica;
• Portaria 24 horas;
• Portão de pedestres e de automóveis com acionamento eletrônico;