Conheça o empreendimento

Desenvolvido em imóvel de 9.180,26m² situado na Av. Sampaio Vidal, área A, Jardim Portal do Sol, Marília, São Paulo;

Possui 2 edifícios de 22 pavimentos cada, com 8 apartamentos por pavimento tipo, totalizando 308 apartamentos e 43.084,83m² de área construída;

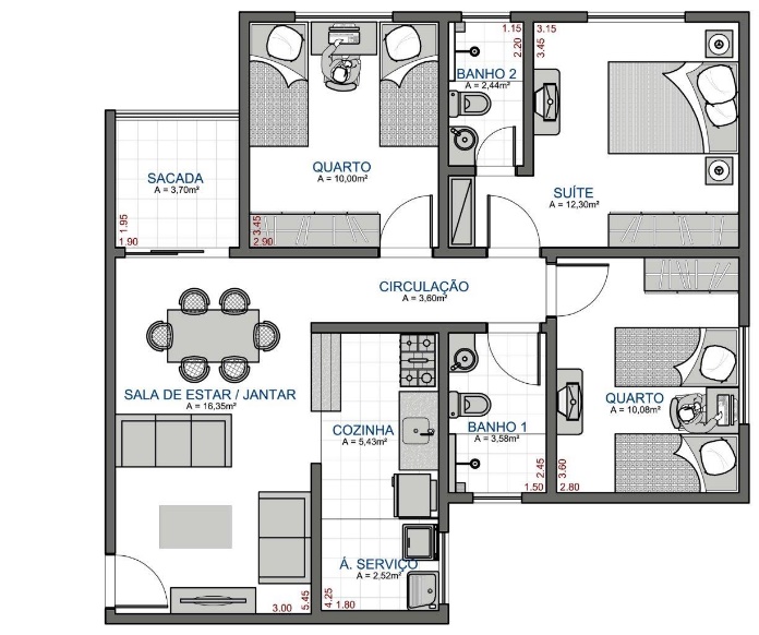
São 154 apartamentos tipo “A”, que possuem área construída de 80,00m² e são compostos de 3 dormitórios (sendo 1 suíte), 1 sala de estar, 1 sala de jantar, varanda, hall de circulação, banheiro social e cozinha com área de serviços;

São 148 apartamentos tipo “B”, que possuem área construída de 62,49m² e são compostos de 2 dormitórios (sendo 1 suíte), 1 sala de estar, 1 sala de jantar, varanda, hall de circulação, banheiro social e cozinha com área de serviços;

São 6 apartamentos tipo “C”, que possuem área construída de 59,24m² e são compostos de 2 dormitórios, 1 sala d estar, 1 sala de jantar, varanda, hall de circulação, banheiro social e cozinha com área de serviços;

Possui ampla área de lazer, que conta com:

• Um playground;
• Um salão de festas com churrasqueira;
• Uma piscina para adultos com deck de madeira;
• Uma piscina para crianças;
• Uma quadra poliesportiva;
• Diversas áreas de convivência;
Possui infraestrutura que conta com:
• Ampla portaria de entrada com hall social;
• Sala do Síndico;
• Sala de reuniões;
• Depósito para materiais/equipamentos de limpeza;
• Grupo Gerador;
• 318 escaninhos para os condôminos;
• 462 vagas de garagem;
• 3 reservatórios inferiores de água potável;
• 2 centrais de abastecimento de gás de cozinha;
• 2 casas de bombas;
• Lixeiras para coleta seletiva de lixo;
• Toda a área externa de uso comum adaptada à locomoção de portadores de deficiência;
• Coleta, armazenamento e reuso de águas pluviais;
• Hidrômetros individuais;
• Gás encanado com medidores individuais;
Sua segurança conta com:
• Muro de perímetro com 2,10 metros de altura;
• Cerca elétrica;
• Câmeras de segurança no perímetro do muro;
• Portaria 24 horas;
• Portão de pedestres e de automóveis com acionamento eletrônico;