Conheça o empreendimento

Parceria com Santa Fé Asset Management

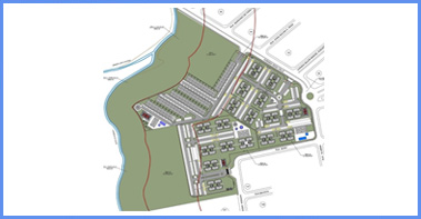
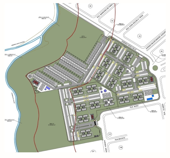
Composto por 3 condomínios independentes desenvolvidos no imóvel de 71.078,98m² localizado na Rua Andalusita, Pontal Sul Acréscimo, Aparecida de Goiânia, GO, totalizando 639 unidades e 36.401,13m² de área construída;

O Condomínio I possui 8 edifícios de 4 pavimentos com 32 apartamentos por edifício, totalizando 256 unidades de 2 quartos e 13.641,98m² de área construída;

O Condomínio II possui 11 edifícios de 4 pavimentos com 32 apartamentos por edifício, totalizando 352 unidades de 2 quartos e 18.946,76m² de área construída;

O Condomínio III possui 95 casas de 2 quartos e 3.812,39m² de área construída;

O apartamento possui 45,77m² de área construída, sendo composto de 1 sala de estar, 2 dormitórios, 1 banheiro social, 1 cozinha, 1 área de serviços e área de circulação;

A casa possui 43,96m² de área construída, sendo composto de 1 sala de estar, 2 dormitórios, área de circulação, 1 banheiro social, cozinha e área de serviços externa;

As áreas de lazer de todos condomínios contam com:

• Quadra poliesportiva;
• Salão de festas com churrasqueira;
• Piscinas para adultos e crianças;
• Playground;
• Áreas de convivência;
Todos condomínios possuem infraestrutura que conta com:
• Portaria de entrada;
• Sala do síndico;
• Depósitos para materiais/equipamentos de limpeza;
• 1 vaga de garagem por apto e 2 vagas por casa;
• Central de abastecimento de gás de cozinha (exceto nas casas);
• Lixeiras para coleta seletiva de lixo;
• Caixas d’água elevadas;
• Hidrômetro individual;
• Medidor de gás individual (exceto nas casas);
A segurança de todos condomínios conta com:
• a. Muro de perímetro com 2,10 metros de altura;
• Previsão para instalação de circuito interno de TV;
• Iluminação de emergência (exceto nas casas);
• Cerca elétrica;
• Portaria 24 horas;
• Portão de pedestres e de automóveis com acionamento eletrônico;