Conheça o empreendimento
-
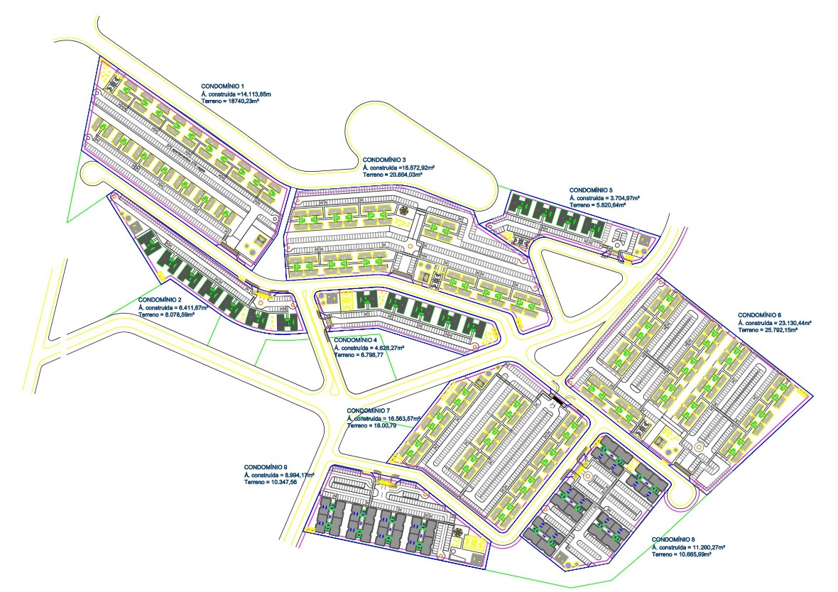
Figura 1 – Implantação geral do empreendimento -
Figura 2 – Localização do Empreendimento
-
Figura 3 – Implantação do Condomínio I
-
Figura 4 – Implantação do Condomínio II -
Figura 5 – Implantação do Condomínio III -
Figura 6 – Implantação do Condomínio IV -
Figura 7 – Implantação do Condomínio V -
Figura 8 – Implantação do Condomínio VI -
Figura 9 – Implantação do Condomínio VII -
Figura 10 – Implantação do Condomínio VIII -
Figura 11 – Implantação do Condomínio IX -
Figura 12 – Planta do Apto Tipo A -
Figura 13 – Planta do Apto Tipo B -
Figura 14 – Planta do Apto Tipo C
Ainda em desenvolvimento, será composto por 9 condomínios independentes que estão sendo desenvolvidos no imóvel com área útil de 125.108,75m² localizado na Estrada do Catruz com a Rua Ademar de Barros, Jardim Garrido, Pedra de Guaratiba, RJ, totalizando 1904 unidades e 105.320,13m² de área construída;
O Condomínio I será construído numa área de 18.740,23m² e possuirá 17 edifícios de 4 pavimentos com 16 apartamentos por edifício, totalizando 272 unidades de 2 quartos e 14.113,85m² de área construída;
O Condomínio II será construído numa área de 8.078,59m² e possuirá 7 edifícios de 4 pavimentos com 16 apartamentos por edifício, totalizando 112 unidades de 2 quartos e 6.411,67m² de área construída;
O Condomínio III será construído numa área de 20.864,03m² e possuirá 10 edifícios de 4 pavimentos com 32 apartamentos por edifício, totalizando 320 unidades de 2 quartos e 16.572,92m² de área construída;
O Condomínio IV será construído numa área de 6.798,77m² e possuirá 5 edifícios de 4 pavimentos com 16 apartamentos por edifício, totalizando 80 unidades de 2 quartos e 4.628,27m² de área construída;
O Condomínio V será construído numa área de 5.820,64m² e possuirá 4 edifícios de 4 pavimentos com 16 apartamentos por edifício, totalizando 64 unidades de 2 quartos e 3.704,97m² de área construída;
O Condomínio VI será construído numa área de 25.792,15m² e possuirá 14 edifícios de 4 pavimentos com 32 apartamentos por edifício, totalizando 448 unidades de 2 quartos e 23.130,44m² de área construída;
O Condomínio VII será construído numa área de 18.000,79m² e possuirá 10 edifícios de 4 pavimentos com 32 apartamentos por edifício, totalizando 320 unidades de 2 quartos e 16.563,57m² de área construída;
O Condomínio VIII será construído numa área de 10.665,99m² e possuirá 5 edifícios de 4 pavimentos com 32 apartamentos por edifício, totalizando 160 unidades de 2 quartos e 11.200,27m² de área construída;
O Condomínio IX será construído numa área de 10.347,56m² e possuirá 4 edifícios de 4 pavimentos com 32 apartamentos por edifício, totalizando 128 unidades de 2 quartos e 8.994,17m² de área construída;
O apartamento “Tipo A” possui 57,57m² de área construída, sendo composto de sala de estar e jantar, 2 dormitórios, área de circulação, banheiro social, cozinha com área de serviços;
O apartamento “Tipo B” possui 70,35m² de área construída, sendo composto de sala de estar e jantar, varanda interna, 2 dormitórios, área de circulação, banheiro social, cozinha com área de serviços;
O apartamento “Tipo C” possui 61,03m² de área construída, sendo composto de sala de estar e jantar, 2 dormitórios (sendo 1 suíte), área de circulação, banheiro social, cozinha com área de serviços;
As áreas de lazer de todos condomínios contam com:
• Quadra poliesportiva;Todos condomínios possuem infraestrutura que conta com:
• Salão de festas com churrasqueira;
• Piscinas para adultos e crianças;
• Playground;
• Quiosques com 2 churrasqueiras cada;
• Áreas de convivência;
• Portaria de entrada;A segurança de todos condomínios conta com:
• Sala do síndico;
• Depósitos para materiais/equipamentos de limpeza;
• 1 vaga de garagem por apto;
• Central de abastecimento de gás de cozinha;
• Lixeiras para coleta seletiva de lixo;
• Caixas d’água elevadas;
• Hidrômetro individual;
• Medidor de gás individual;
• Muro de perímetro com 2,10 metros de altura;
• Previsão para instalação de circuito interno de TV;
• Iluminação de emergência;
• Cerca elétrica;
• Portaria 24 horas;
• Portão de pedestres e de automóveis com acionamento eletrônico;