Conheça o empreendimento
-
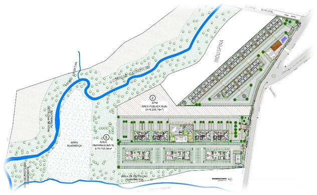
Figura 1 – Implantação geral do empreendimento -
Figura 2 - Localização do Empreendimento -
Figura 3 – Implantação do Condomínio Vale Verde -
Figura 4 – Perspectiva do Condomínio Vale Verde -
Figura 6 – Área de Lazer
-
Figura 7 – Salão de Festas
-
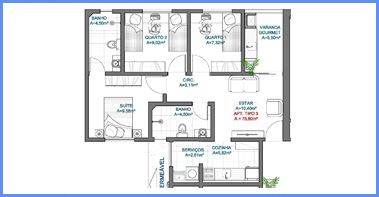
Figura 8 – Planta do Apto do Cond. Vale Verde -
Figura 9 – Implantação do Condomínio Vale da Flor -
Figura 10 – Planta do Apto tipo “A” do Cond. Vale da Flor -
Figura 11 – Planta do Apto tipo “B” do Cond. Vale da Flor -
Figura 12 – Implantação do Condomínio Vale do Porto -
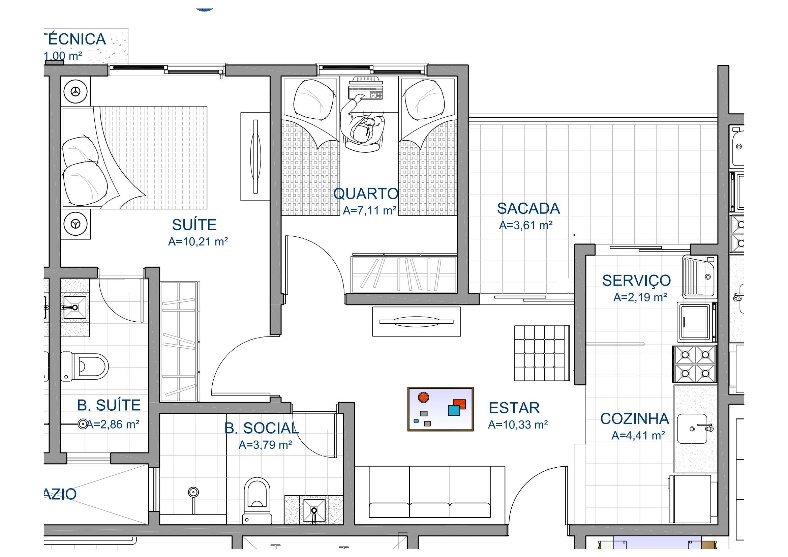
Figura 13 – Planta do Apto do Cond. Vale do Porto
Composto por 3 condomínios independentes, desenvolvidos na Av. Fabril nº 1691, Vila Fabril, Anápolis, GO, totalizando 816 apartamentos de 2 e 3 dormitórios;
Condomínio Vale Verde: construído na área 01 com 18.354,73m², possui 10 edifícios de 4 pavimentos, com 32 aptos por edifício, totalizando 320 unidades e 17.021,43m² de área construída;
O apartamento possui 45,51m² de área construída, sendo composto de 1 sala, 2 dormitórios, 1 banheiro social, 1 cozinha, 1 área de serviços e área de circulação;
A área de lazer do condomínio conta com:
• Quadra poliesportiva;Condomínio Vale da Flor: construído na área 03 com 14.564,40m², possui 4 edifícios de 8 pavimentos, com 64 aptos por edifício, totalizando 256 unidades e 16.683.54m² de área construída;
• Piscina para adultos;
• Piscina para crianças;
• Salão de festas;
• Playground;
• 3 quiosques com 2 churrasqueiras cada;
• Diversas áreas de convivência;
O apartamento tipo “A” possui 54,71m² de área construída, sendo composto de 1 sala de estar e jantar, varanda, 2 dormitórios (sendo 1 suíte), 1 banheiro social, 1 cozinha, 1 área de serviços e área de circulação.
O apartamento Tipo “B” possui 57,29m² de área construída, sendo composto de 1 sala de estar e jantar, varanda, 2 dormitórios (sendo 1 suíte), 1 banheiro social, 1 cozinha, 1 área de serviços e área de circulação;
A área de lazer do condomínio conta com:
• Quadra poliesportiva;Condomínio Vale do Porto: construído na área 04 com 13.879,55m², possui 3 edifícios de 10 pavimentos, com 80 aptos por edifício, totalizando 240 unidades e 23.645,18m² de área construída;
• Piscina para adultos;
• Piscina para crianças;
• Salão de festas;
• Playground;
• 3 quiosques com 2 churrasqueiras cada;
• Diversas áreas de convivência;
O apartamento possui 74,28m² de área construída, sendo composto de 1 sala de estar e jantar, varanda gourmet, 3 dormitórios (sendo 1 suíte), 1 banheiro social, 1 cozinha, 1 área de serviços e área de circulação.
A área de lazer do condomínio conta com:
• Quadra poliesportiva;Possui infraestrutura que conta com:
• Piscina com 2 raias para adultos;
• Piscina para crianças;
• 3 salões de festas;
• Playground;
• 2 cozinhas gourmet;
• Salão de jogos;
• Salão de fitness;
• Salão de beleza;
• Brinquedoteca;
• Quiosques com 2 churrasqueiras;
• Diversas áreas de convivência;
• Portaria de entrada;Sua segurança conta com:
• Sala do síndico;
• Depósitos para materiais/equipamentos de limpeza;
• Vagas de garagem suficientes para todos os apartamentos (2 vagas para cada apto no Vale do Porto);
• Central de abastecimento de gás de cozinha;
• Lixeiras para coleta seletiva de lixo;
• Caixa d'água elevada;
• Hidrômetro individual;
• Medidor de gás individual;
• Muro de perímetro com 2,10 metros de altura;
• Circuito interno de TV;
• Escadarias com iluminação de emergência;
• Cerca elétrica;
• Portaria 24 horas;
• Portão de pedestres e de automóveis com acionamento eletrônico;