Conheça o empreendimento
-
Figura 1 – Implantação geral do empreendimento -
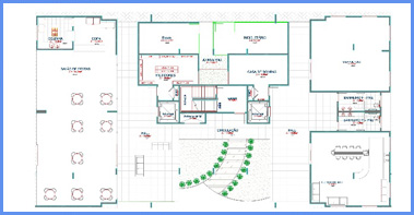
Figura 3 – Planta do Pilotis I – Áreas de Lazer e Convivência -
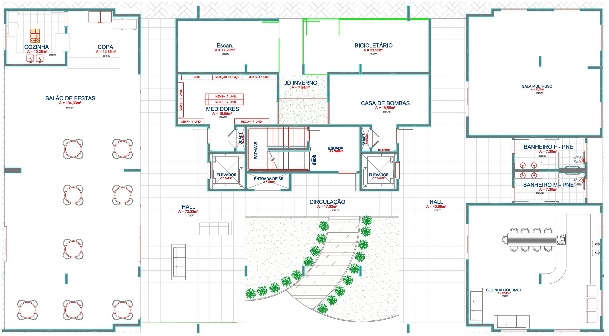
Figura 4 – Planta do Pilotis II – Áreas de Lazer e Convivência -
Figura 5 – Planta do Pilotis III – Áreas de Lazer e Convivência -
Figura 6 – Planta do Pilotis IV – Áreas de Lazer e Convivência -
Figura 7 – Área de Lazer Externa
-
Figura 8 – Fachadas do Edifício -
Figura 9 – Planta do Apto de 2 quartos -
Figura 10 – Planta do Apto de 3 quartos
Desenvolvido em imóvel de 26.290m² situado na Rua Planejada 26 (Antiga Estrada do Moinho), chácara Sossego, Jardim Imperial, Cuiabá, MT;
Condomínio com 4 edifícios de 12 pavimentos, com 4 aptos de 2 quartos e 4 aptos de 3 quartos por pavimento tipo, sendo 192 de 2 quartos (sendo 1 suíte) e 192 de 3 quartos (sendo 1 suíte), totalizando 384 unidades e 32.208,80m² de área construída;
O apartamento de 2 quartos possui 58,26m² de área construída, sendo composto de 1 sala de estar e jantar, varanda, 2 quartos (sendo 1 suíte), 1 banheiro social, 1 cozinha, 1 área de serviços e área de circulação.
O apartamento de 3 quartos possui 73,60m² de área construída, sendo composto de 1 sala de estar, 3 quartos (sendo 1 suíte), 1 banheiro social, 1 cozinha, 1 área de serviços e área de circulação.
A área de lazer do condomínio conta com:
• Nos pilotis dos 4 edifícios:O condomínio possui infraestrutura que conta com:
» 3 salões de festas;
» 8 áreas de recreação;
» 2 cozinhas gourmet;
» 2 salas de jogos;
» Salão de fitness;
» Sala de videogame;
» Brinquedoteca;
» Salão de Beleza;
» 1 banheiro masculino;
» 1 banheiro feminino;
• o Na área externa:
» Quadra poliesportiva;
» Quadra de tênis de saibro;
» Piscina para adultos com 2 raias de 25m;
» Bar molhado;
» Piscina para crianças;
» 4 banheiras de Ofurô;
» Academia;
» SPA;
» Sauna masculina;
» Sauna feminina;
» Vestiário masculino;
» Vestiário feminino;
» Playground;
» 2 quiosques com 2 churrasqueiras cada;
• Portaria de entrada;Sua segurança conta com:
• Sala do síndico com sala de reuniões;
• 4 bicicletários;
• Auditório para 100 cadeiras;
• Depósitos para materiais/equipamentos de limpeza;
• 1 vagas de garagem para os aptos de 2 quartos e 2 vagas para os aptos de 3 quartos;
• Central de abastecimento de gás de cozinha;
• Lixeiras para coleta seletiva de lixo;
• Hidrômetro individual;
• Medidor de gás individual;
• 4 reservatórios inferiores de água potável;
• Muro de perímetro com 2,10 metros de altura;
• Circuito interno de TV;
• Escadarias com iluminação de emergência;
• Cerca elétrica;
• Portaria 24 horas;
• Portão de pedestres e de automóveis com acionamento eletrônico;