Conheça o empreendimento

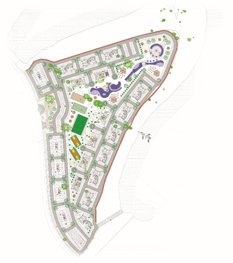
Ainda em desenvolvimento num imóvel de 149.865,78m² localizado nas margens do Lago Jaguara, em Rifaina, SP, com o conceito de “Condomínio Resort”, o empreendimento possuirá 10 edifícios de 4 pavimentos com 32 apartamentos por edifício, 6 edifícios de 6 pavimentos com 48 aptos por edifício e 5 edifícios de 10 pavimentos com 80 patos por edifício, totalizando 1008 unidades de 1, 2 e 3 quartos, todos com suíte;

As áreas de lazer do empreendimento contarão com

Nos pilotis dos edifícios de 6 pavimentos:
• 4 salões de festas;
• Auditório para 100 cadeiras;
• 4 cozinhas gourmet;
• 2 salas de jogos;
• Salão de fitness;
• Sala de videogame;
• Brinquedoteca;
• Salão de Beleza;
• Restaurante;
• SPA;
• Sauna masculina;
• Sauna feminina;
• Vestiário masculino;
• Vestiário feminino;

Na área externa:
• 2 quadras poliesportivas;
• 2 quadras de tênis de saibro;
• Campo de futebol socyte;
• Pista de skate;
• Parque aquático contendo:
   » Piscina aquecida com 3 raias de 25m;
   » 4 piscinas aquecidas para adultos e crianças;
   » Bar molhado de frente para a represa;
   » 10 banheiras de Ofurô (6 lugares cada banheira);
   » 3 lanchonetes;
• 3 playgrounds;
• 8 áreas de recreação;
• 9 quiosques com 2 churrasqueiras cada;
• 9 banheiros masculino;
• 9 banheiros feminino;
A infraestrutura contará com:
• Portaria de entrada;
• Escritório do síndico com sala de reuniões;
• Depósitos para materiais/equipamentos de limpeza;
• 1 vaga de garagem para cada apto de 1 ou 2 quartos;
• 2 vagas de garagem para os aptos de 3 quartos;
• 60 vagas para barcos nos pilotis dos edifícios de 10 pavimentos;
• Guarda-barco com 24 vagas para barcos maiores;
• Pier para ancoragem simultânea de 20 barcos;
• Rampa de acesso dos barcos à represa;
• Central de abastecimento de gás de cozinha;
• Lixeiras para coleta seletiva de lixo;
• Reservatórios de água potável inferiores;
• Hidrômetro individual;
• Medidor de gás individual;
A segurança contará com:
• Muro de perímetro com 3,00 metros de altura;
• Circuito interno de TV;
• Iluminação de emergência nos edifícios e áreas comuns;
• Cerca elétrica;
• Portaria e vigilância aramada 24 horas;
• Portão de pedestres e de automóveis com acionamento digital;